3-комнатная квартира на Фучика 9 в ЖК "Созвездие"

  • 01.09.2015
  • 2958
Оцените проект:

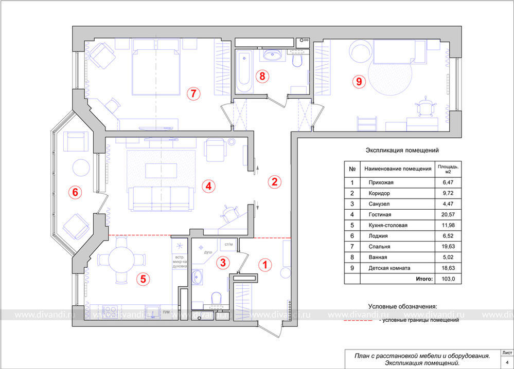
Тип проекта: квартира, спальня, детская, кухня, ванная, гостиная

Стиль: современный стиль

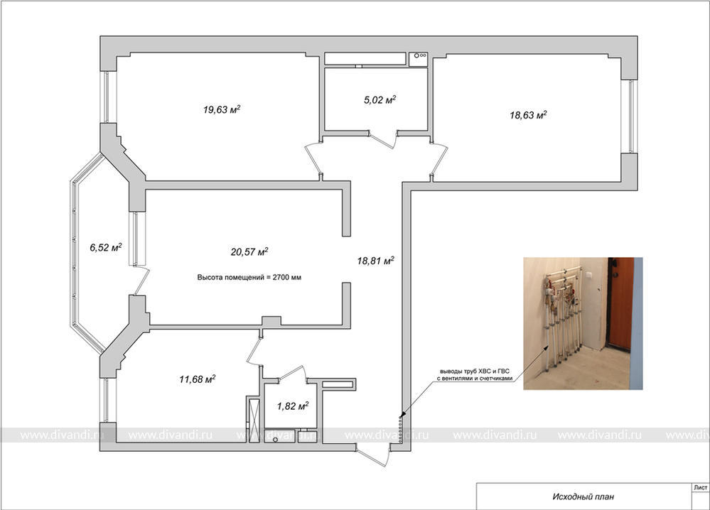
Дизайн-проект разработан для семьи из 3-человек. Заказчикам хотелось объединить гостиную с кухней и увеличить площадь санузла с целью размещения в нем душа.

comments powered by HyperComments

Похожие проекты: