Акценты в белом интерьере

  • 19.04.2018
  • 1518
Оцените проект:

Тип проекта: квартира, кухня, гостиная

Стиль: минимализм

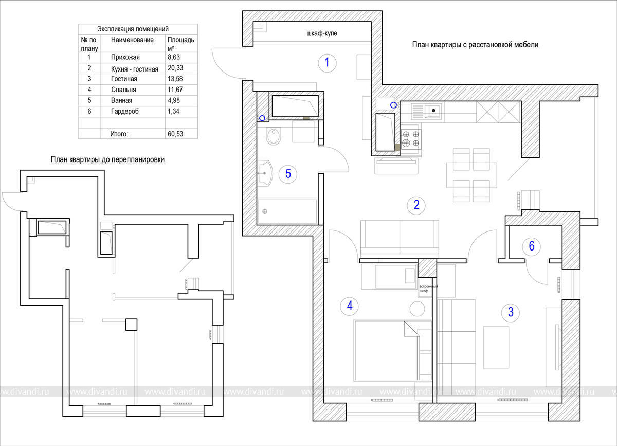
Интерьеры 2-х комнатой квартиры в Малевиче. Расширение кухни за счет объединения холла и переноса перегородок.

comments powered by HyperComments

Похожие проекты: