войти в личный кабинет
/
регистрация на сайте
войти в личный кабинет
/
регистрация на сайте
Диванди — всё, что нужно для дома, не выходя из дома
мебель и товары для дома
дизайн интерьера
ремонт и стройка
недвижимость
каталог мебели
спецпредложения
распродажи
магазины и салоны
отзывы
объявления
рейтинги
портфолио дизайнеров
каталог дизайнеров и дизайн-студий
консультации
статьи
новости
мастера, бригады и строй. фирмы
тендеры и заказы
реализованные объекты
отзывы
статьи
новости
форум
недвижимость екатеринбурга
объявления
продажа квартир
новостройки екб
новостройки 2026
коттеджные посёлки
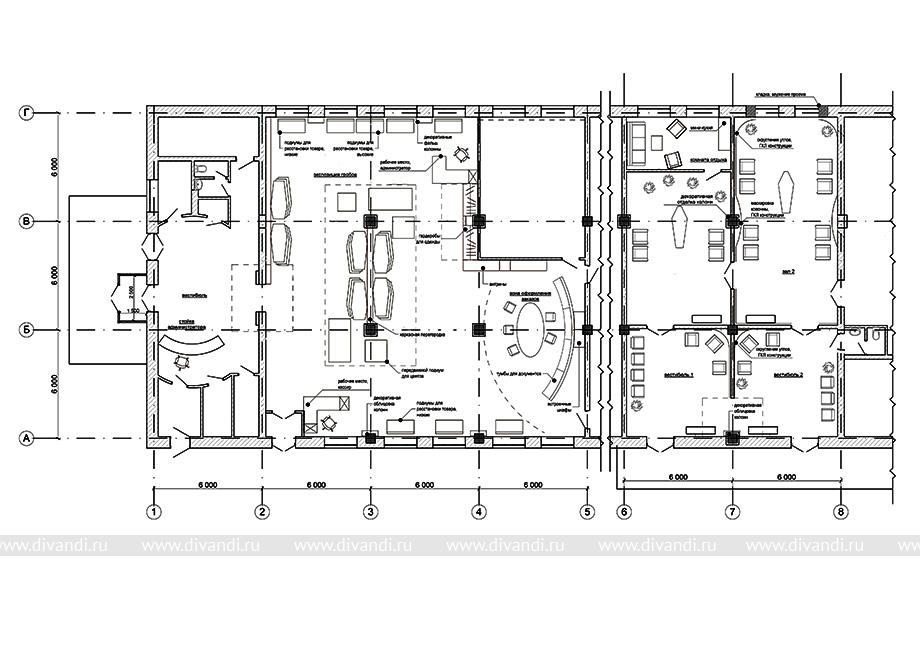
Дизайн интерьера салона похоронных услуг REQUIEM
29.11.2019
1015
Студия архитектурного дизайна «NAU_DESIGN»
телефон: +7 (343) 286-20-43
http://nautilus1.ru/
Оцените проект:
проголосовали:
/ средний бал:
Тип проекта:
административное здание
Стиль:
классический
comments powered by HyperComments
Похожие проекты:
Дизайн интерьера Инфузионной клиники BIORISE
Дизайнер «Татаурова Наталья»
23.04.2026
9
70
Дизайн-проект клиники капельниц и инфузионной терапии
Дизайнер «Татаурова Наталья»
23.04.2026
12
59
Дизайн-проект Инфузионной клиники BIORISE
Дизайнер «Татаурова Наталья»
23.04.2026
6
58
Комфортная душевая с золотой раковиной
ART-DESIGN дизайн-студия Анны Гусевой
08.02.2026
9
245
Гостиная г. Среднеуральск
Архитектурно-Строительная компания «Батенькофф»
30.01.2026
6
245
Кухня г.Среднеуральск
Архитектурно-Строительная компания «Батенькофф»
30.01.2026
2
234
Прихожая г.Среднеуральск
Архитектурно-Строительная компания «Батенькофф»
30.01.2026
6
218
Уютная кухня-гостиная в любимом доме
ART-DESIGN дизайн-студия Анны Гусевой
18.07.2025
21
685
мебель и товары для дома
каталог мебели
спецпредложения
акции и распродажи
магазины и салоны
отзывы
объявления
рейтинги
личный кабинет
регистрация
вход
дизайн интерьера
портфолио дизайнеров
каталог дизайн-студий
консультации
статьи
новости
личный кабинет
регистрация
вход
ремонт и стройка
мастера, бригады и строй. фирмы
тендеры и заказы
реализованные объекты
отзывы
статьи
новости
для бригад и фирм
регистрация
войти в личный кабинет
недвижимость
недвижимость екатеринбурга
объявления
продажа квартир
новостройки
новостройки 2026
коттеджные посёлки
коммерческая недвижимость
форум
Вход на сайт для продавцов мебели и дизайнеров
Форма входа для заказчиков, мастеров и строительных фирм
здесь
Логин:
Пароль:
Сбросить пароль
Регистрация
Напомнить пароль
Логин:
Форма входа
Регистрация