Дизайн интерьеров квартиры в ЖК Гольфстрим

  • 16.09.2017
  • 2196
Оцените проект:

Тип проекта: квартира, кухня, гостиная

Стиль: минимализм

Проект 2017 года. В настоящее время в реализации.

Проект создавался для молодой семьи, любящей спорт, общение с друзьями, активную деятельность и хороший отдых.

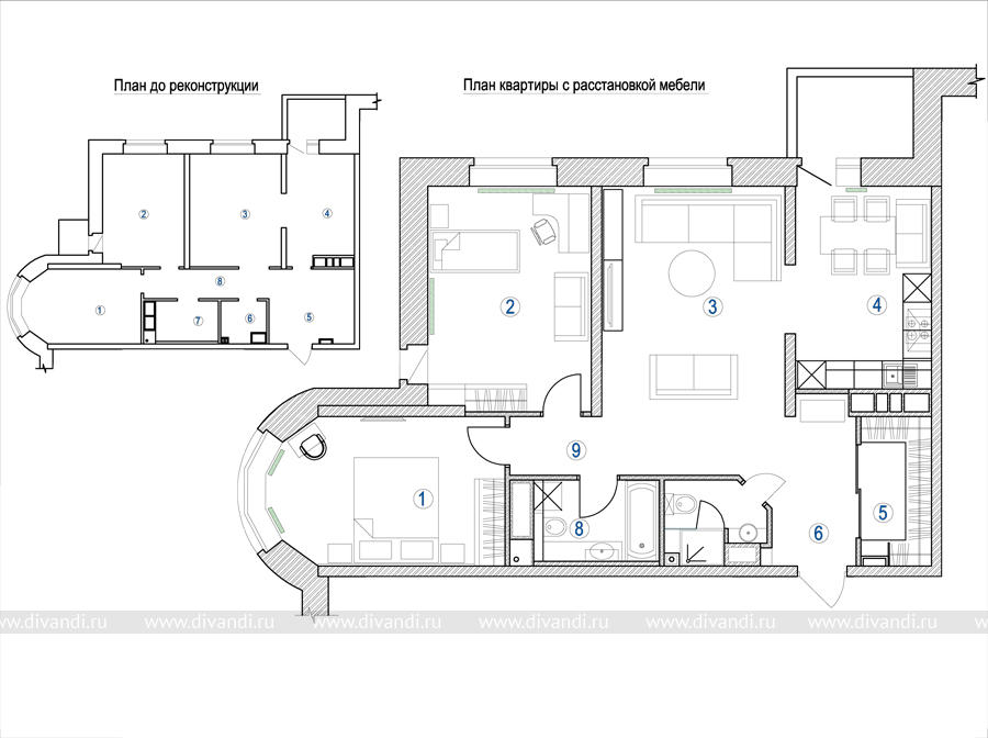
В интерьере этой 3-х комнатной квартиры на высотном этаже современного Жилого Комплекса хотелось совместить две не совсем совместимые вещи – Loft – стиль чердачных помещений с огромными витражами и высокими потолками, а также просторными залами и современный минимализм с простыми формами и функциональными решениями.

Сначала атмосферу Loft создали, внеся в отделку состаренный кирпич, бетонные потолки с открытой цветной проводкой, отделку пола под состаренную доску.

Поскольку потолки не высокие и пространства для Loft маловато, часть стен окрашена в белый цвет, также потолок белого цвета, контрастирует с бетоном, кухня в белом глянце добавляет пространственности интерьеру.

Loft принято разбавлять блеском металла или мягкими тканевыми фактурами, вносящими в этот грубоватый стиль уют и атмосферу отдыха. В этом интерьере такую роль выполняют яркие локальные цвета, желтый, бирюзовый, белый глянец.

Большое количество мягких посадочных мест – тоже признак стиля Loft, появившегося в среде деятелей актерского искусства, любящих собираться крупными компаниями.

Так или иначе этот стиль трудно уместить в малогабаритных низких помещениях, предназначенных для жизни и проект к завершению претерпел много изменений. Комнаты стали уютнее, стиль переродился в современный с элементами кирпича, амбарной доски, функциональной мебели и теплыми оттенками.

Дизайн интерьеров квартиры в Жилом Комплексе Гольфстрим выгодно отличается смелостью и современным стилем.

comments powered by HyperComments

Похожие проекты: