Дизайн комнаты-студии в 4-х комнатной квартире, Екатери

  • 30.08.2019
  • 1289
Оцените проект:

Тип проекта: квартира, кухня, гостиная

Стиль: минимализм

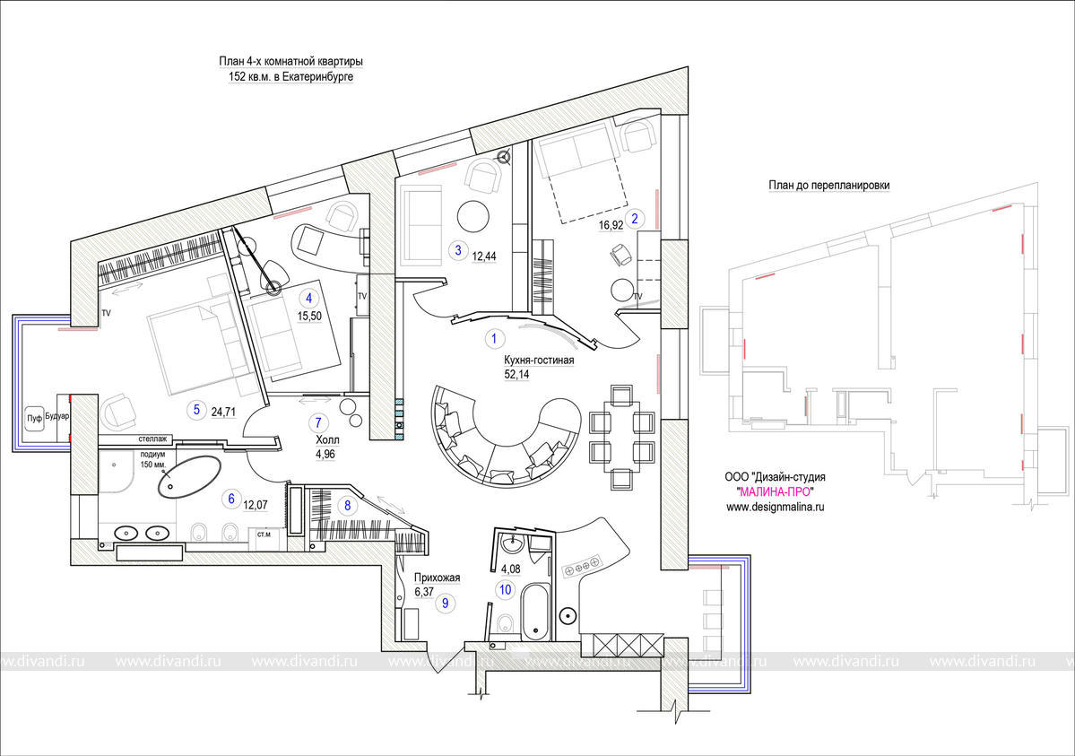
Комната - студия в 4-х комнатной квартире включает гостиную, кухню и прихожую. Все помещения объединены единой стилистикой и плавно перетекают друг в друга. В отделке использованы самые современные тенденции и технологии.

comments powered by HyperComments

Похожие проекты: