Дизайн квартиры студии

  • 16.10.2019
  • 1060
Оцените проект:

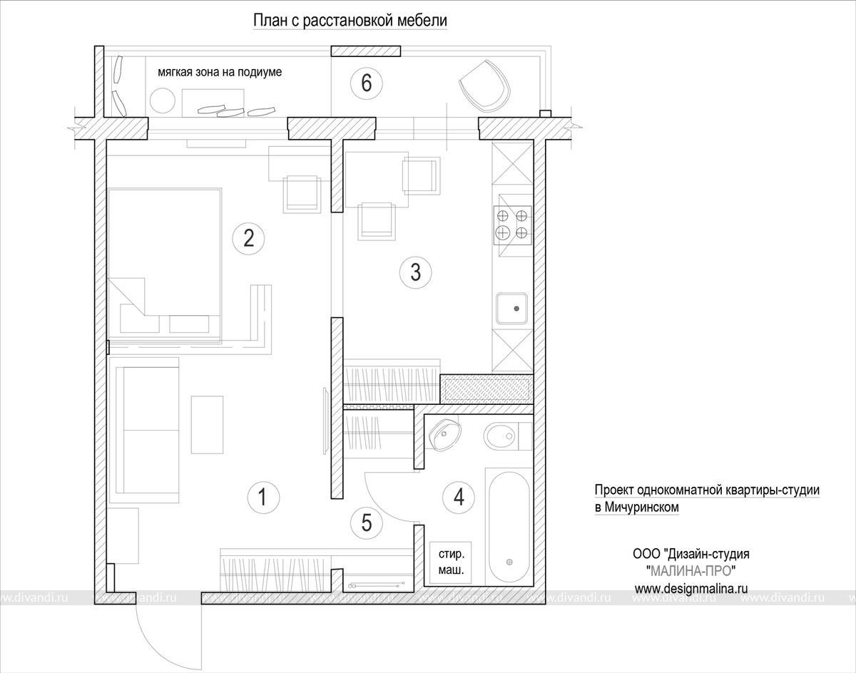
Тип проекта: квартира, спальня, гостиная

Стиль: минимализм

Дизайн интерьеров 1-комнатной квартиры в Мичуринском. В комнате выделена гостевая зона с диваном, которая совмещена с прихожей. Приват зона сообщается с кухней. Таким образом удалось избавиться от коридоров и увеличить полезную площадь квартиры 42 кв.м.

comments powered by HyperComments

Похожие проекты: