Импозантная классика (проект)

  • 22.01.2018
  • 1136
Оцените проект:
1 2 3 4 5

Тип проекта: квартира

Стиль: классический

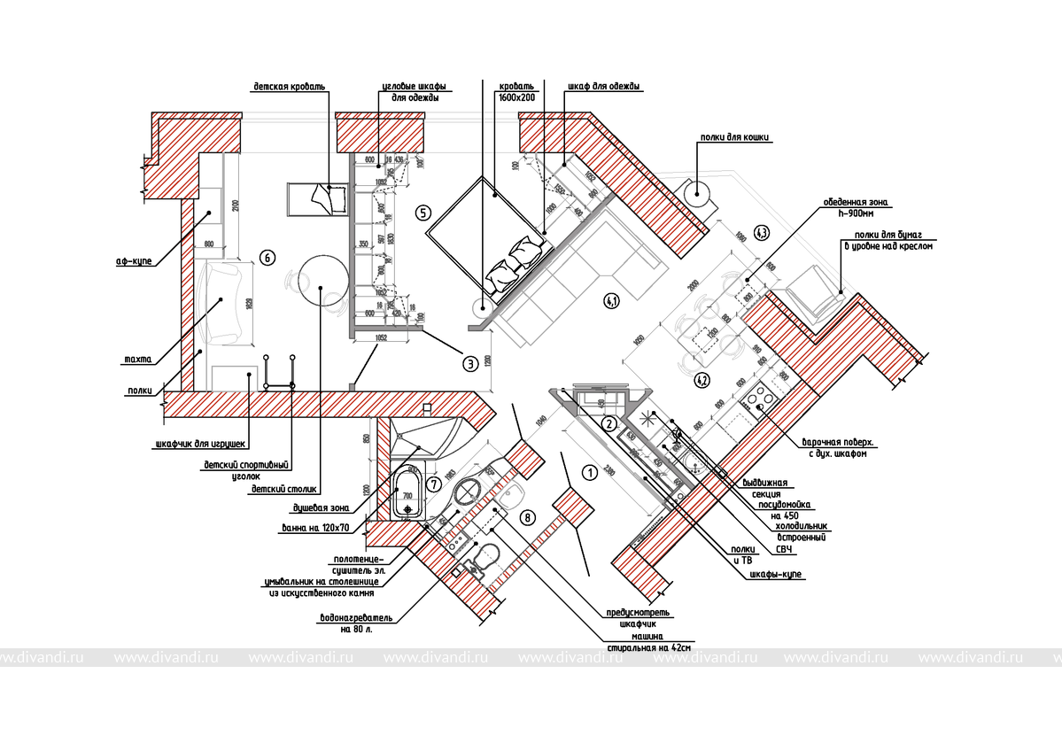
Проект квартиры для молодой семьи
Площадь: 66 м2
Стиль: современная классика

Нашей задачей стало сделать интерьер легким с ноткой импозантности и элементами английской классики. Среди отделочных материалов предпочтение отдавалось преимущественно натуральным.

Когда мы получили в работу план квартиры, который был заложен застройщиком, сразу поняли, что данная планировка совершенно не отвечает пожеланиям молодой семьи с маленьким ребенком. Единственным достоинством этой квартиры это был сногсшибательный вид на парк и город с 16-го этажа, эта идея также легла в основу проекта, сделав пространство более открытым и светлым.

Мы приняли совместное решение с заказчиками снести все не несущие перегородки между комнатами и утеплить балкон, сделав его частью общего пространства кухни-гостиной.

В результате полной переработки планировочного решения удалось получить комфортное пространство в столь небольшой по площади квартире.

comments powered by HyperComments

Похожие проекты: