Импозантная классика (реализованный проект - фото)

  • 23.01.2018
  • 1439
Оцените проект:

Тип проекта: квартира, спальня, кухня, ванная, гостиная

Стиль: классический

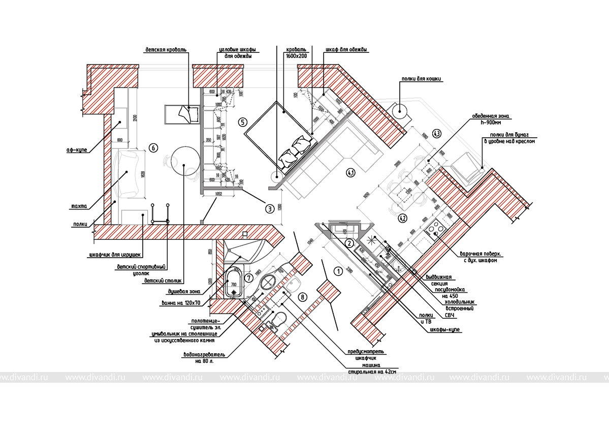
Реализованный проект квартиры для молодой семьи

Площадь: 66 м2
Стиль: современная классика

Нашей задачей стало сделать интерьер легким с ноткой импозантности и элементами английской классики. Среди отделочных материалов предпочтение отдавалось преимущественно натуральным.

Единственным достоинством этой квартиры это был сногсшибательный вид на парк и город с 16-го этажа, эта идея также легла в основу проекта, сделав пространство более открытым и светлым.

Мы приняли совместное решение с заказчиками снести все не несущие перегородки между комнатами и утеплить балкон, сделав его частью общего пространства кухни-гостиной.


В результате полной переработки планировочного решения удалось получить комфортное пространство в столь небольшой по площади квартире.

Отделка окончена, и со временем постепенно наполняется заложенными в проект мебелью и предметами.

comments powered by HyperComments

Похожие проекты: