Интерьер коттеджа в Верхней Сысерти

  • 27.08.2015
  • 2874
Оцените проект:

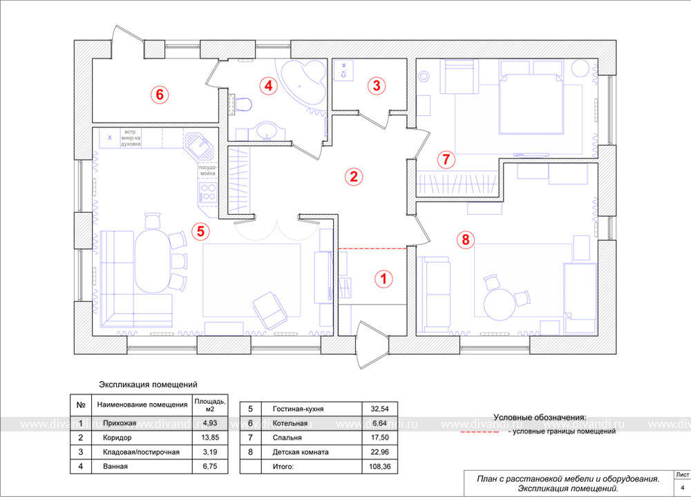
Тип проекта: загородный дом, спальня, детская, кухня, ванная, гостиная

Стиль: эклектика

Интерьер 1-этажного коттеджа разработан для семьи из 3-х человек: родители + маленькая дочка. Заказчиков вполне устраивала планировка в приобретенном доме, поэтому она осталась без изменений. Требовалось создать непринужденную атмосферу загородного жилья, где можно было бы в полной мере отдохнуть от городской суеты.

comments powered by HyperComments

Похожие проекты: