Интерьер квартиры в ЖК "Времена года"

  • 27.05.2016
  • 3277
Оцените проект:

Тип проекта: квартира, спальня, детская, кухня, ванная, гостиная

Стиль: современный стиль

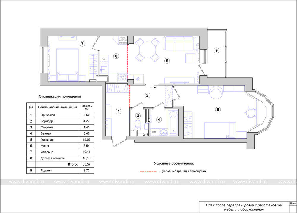
В результате перепланировки удалось преобразовать двухкомнатную квартиру в трехкомнатную. Спальня получилась хоть и небольшая, но самое необходимое вошло.

comments powered by HyperComments

Похожие проекты: