Из трешки в четырешку!

  • 25.01.2018
  • 2919
Оцените проект:

Тип проекта: квартира, спальня, детская, кухня, ванная, гостиная

Стиль: современный стиль

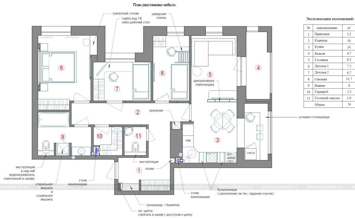
Качественный дизайн всегда начинается с хорошей планировки. В данном проекте заказчиками была поставлена задача увеличить количество комнат для того чтобы разделить детскую мальчика от детской девочки, что легко удалось сделать так-как как в квартире достаточное количество окон для комфортного разделения на 4 комнаты.
В небольших по площади помещениях есть особый уют. В данной квартире удалось разместить на 75 кв.м кухню - гостиную, столовую, комфортную кухню и рабочую зону на присоединенном балконе с замечательным видом на верх-исетский пруд и на уктусский парк. Также две функциональных детских комнаты, спальню, гардероб, ванную и гостевой санузел.

comments powered by HyperComments

Похожие проекты: