Как всегда шикарный Ар-деко

  • 20.05.2014
  • 2377
Оцените проект:

Тип проекта: квартира

Стиль: ар деко

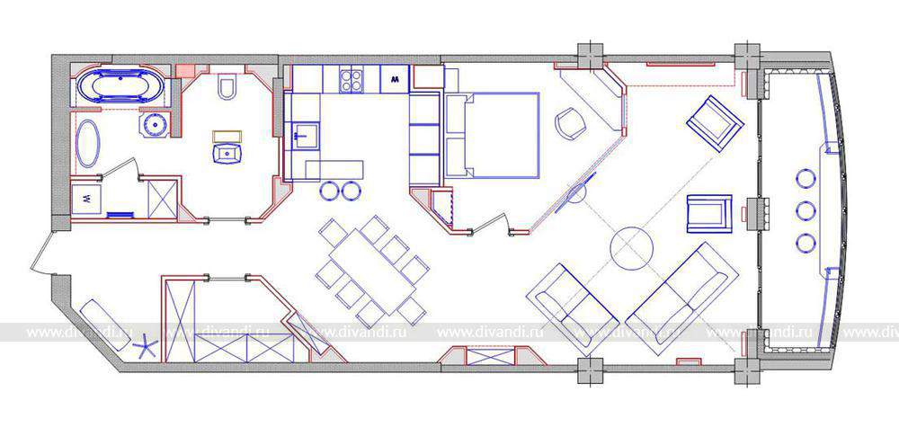
Жилые высотки Антарес – лакомый кусочек в нашем городе. Последнюю квартиру в первой высотке с шикарным видом на Зеленую рощу мои заказчики выкупали уже у первых владельцев. Да и мне поставили непростую задачу: с одной стороны, самый шикарный стиль - Ар Деко, с другой, очень сложная задача по планировке – вытянутое помещение, шириной всего 6 метров, с 2-мя окнами по дальней узкой стороне, а хочется ведь и спальню с окном, и большую, хорошо освещенную гостиную. Но все решаемо!

Основой интерьера послужили акценты на уникальных материалах в их сложных сочетаниях: шпон палисандра в лаке на фасадах кухни от Julia Novars и дверях от New Design Porte, новинки итальянской фабрики Rex - крупноформатный керамогранит Alabastri di Rex, имитирующий большие пласты мрамора невероятной красоты, рисунок которых подобран фабрикой с особой тщательностью, искусственный камень оттенка темного шоколада с крупными золотыми вкраплениями, зеркала и остекление больших форматом с рисунками, разработанными специально для данного интерьера.

Сложная архитектура пространства связана не столько с выбором невероятно роскошного и сложного стиля Ар Деко, сколько с исходными характеристиками объекта. Пространство организовано сложной геометрической сеткой, выверенной до миллиметра, и, раскрываясь сразу от входа, ведет нас к парадным зонам - большой столовой на 8 персон, развернутой под 45 градусов и подчеркивающей динамику, и просторной гостиной с каминной зоной.

На такой небольшой площади расположились не только парадные зоны, но и все необходимые для комфортной жизни помещения: спальня с большой кроватью и рабочим столом, выполненным по авторским эскизам из дуба, естественное освещение которой обеспечивается большой стекленной перегородкой и дополнительным "окном" в рабочей зоне, выполненными в стиле интерьера, большая гардеробная с гладильной доской, отдельные зоны для гостевого санузла и хозяйской ванной с туалетным столиком и личной раковиной на авторском подстолье, а также небольшая постирочная.

Теперь и в Екатеринбурге у заказчиков есть шикарное и уютное одновременно местечко, не уступающее по комфорту их загородному дому.

comments powered by HyperComments

Похожие проекты: