Квартира в жк Адмиральский, 83 м2

  • 15.05.2010
  • 6466
Оцените проект:

Тип проекта: квартира

Стиль: классический

После выполнения ряда предварительных эскизов – заказчик сделал свой выбор в сторону классического стиля решения интерьера.
Основная задача, наряду с эстетикой и внешней привлекательностью интерьеров - функционально грамотно решить пространство квартиры. Объединить красоту и комфорт для повседневной жизни.
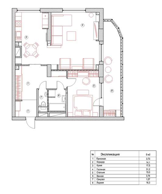
Изначальная планировка квартиры потребовала внесения ряда корректировок. При входе была выделена зона прихожей, благодаря чему, пространство холла приобрело более органичные пропорции.
За счет коридора были увеличены площади ванны и санузла. Заделан дополнительный проем в гостиную, что позволило выделить место для устройства дополнительного шкафа купе.
Вся палитра отделочных материалов решена на сближенных цветах, используя все богатство палитры от золотисто-желтого до терракотово-красных оттенков.

comments powered by HyperComments

Похожие проекты: