Немецкий лофт по-уральски

  • 07.12.2012
  • 3850
Оцените проект:

Тип проекта: квартира

Стиль: минимализм

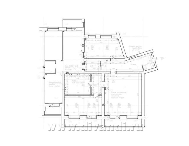
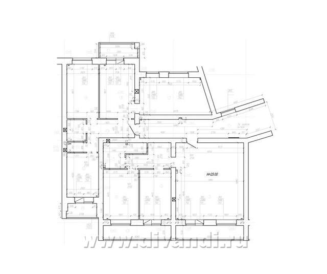
Приобретя две 3-х комнатные квартиры, Заказчик решил их объединить в одну большую. Площадь первой квартиры до перепланировки была 80м.кв., а второй – 96,15 кв.м. После объединения итоговая площадь квартиры составила 186,85 м.кв.
После перепланировки и объединения 2-х квартир получилась одна большая и очень просторная квартира. Несмотря на то, что количество помещений уменьшилось, площадь их увеличилась. Появилось больше света и воздуха. Общая площадь квартиры составила – 136м.кв., а оставшуюся площадь было решено использовать для профессиональной деятельности хозяйки – косметологического кабинета.
Стиль в интерьере был определен Заказчиком – минимализм с элементами лофта. Изначально предполагалось, что отделка стен и пола станет фоном для стильных и современных светильников, техники и мебели. На стенах – гладкая штукатурка под покраску, на потолке – голые бетонные плиты в основных помещениях. На полу в комнатах – паркетная доска. В качестве покрытия для пола в коридоре, постирочной и ванной было решено использовать керамическую плитку. Все материалы, мебель и светильники Заказчик покупал (что-то заказывал) самостоятельно. Нашей задачей было грамотно распределить их в пространстве квартиры и просчитать количество.

comments powered by HyperComments

Похожие проекты: