Немного гламура

  • 23.07.2012
  • 5861
  • телефон: Марина Дрейпа: 8-912-24-09872, Станислав Горбачев: 8-912-28-37920, Ст
Оцените проект:

Тип проекта: квартира

Стиль: эклектика

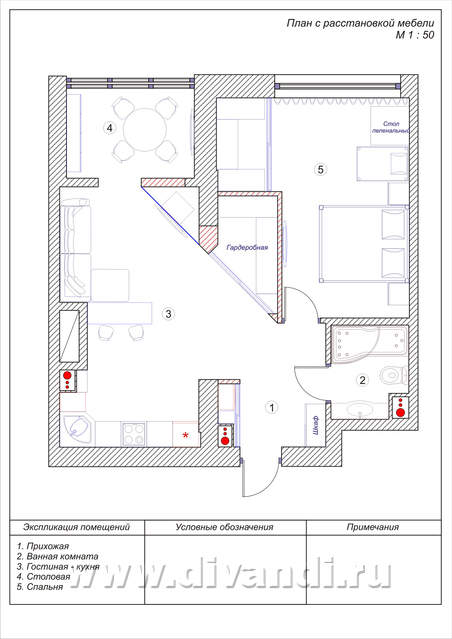
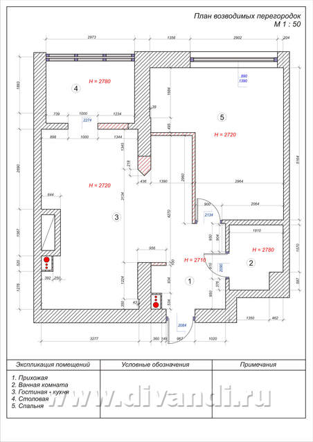
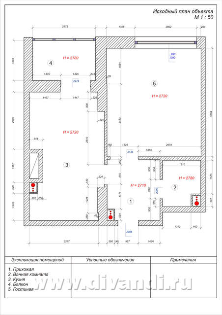
Исходным материалом для данного проекта стала маленькая однокомнатная квартира с неудобной планировкой. Лоджия, небольшая комната без конкретного назначения и большая кухня, визуально разделённая на 2 части широким выступом вентканала. Было очевидно, что здесь наобходимы радикальные меры.

В результате перепланировки мы объеденили лоджию с кухней, разместив там небольшую, но очень уютную и стильную обеденную зону. Отныне конструкция вентиляционного короба разделяет кухню на две функциональные зоны — первая предназначена для приготовления пищи и ограничена авторской барной стойкой, а вторая представляет собой миниатюрную, но весьма уютную гостиную. Маленькая комнатка непонятного назначения превратилась в достаточно прострную спальню, и при этом в квартире нашли себе место два вместительных гардероба.

В качестве стиля была выбрана сдержанная современная эклектика — фьюжн. Данный стиль позволяет использовать элементы классических стилей на равне с глянцевыми поверхностями современной мебели. Светаля гамма отделки визуально расширяет пространство, а яркие и контрастные элементы смешанного стиля привлекают внимание гостей к основным функциональным зонам — кухне, гостиной и обеденной зоне.

comments powered by HyperComments

Похожие проекты: