sky

  • 28.04.2014
  • 2648
Оцените проект:

Тип проекта: квартира, гостиная

Стиль: современный стиль

Покупая большую квартиру, с огромными площадями, первое время вам нравится в ней простор. Но спустя годы, у многих возникает желание избавиться от свободного пространства, добавить недостающие помещения. При помощи перепланировки можно добиться желаемых результатов. Самое главное правильно определить для себя, чего именно вам не хватает и будет ли комфортно в помещениях с меньшими площадями. Иногда сократить масштабы и увеличить количество комнат вынуждают обстоятельства, такие как пополнение в семье.

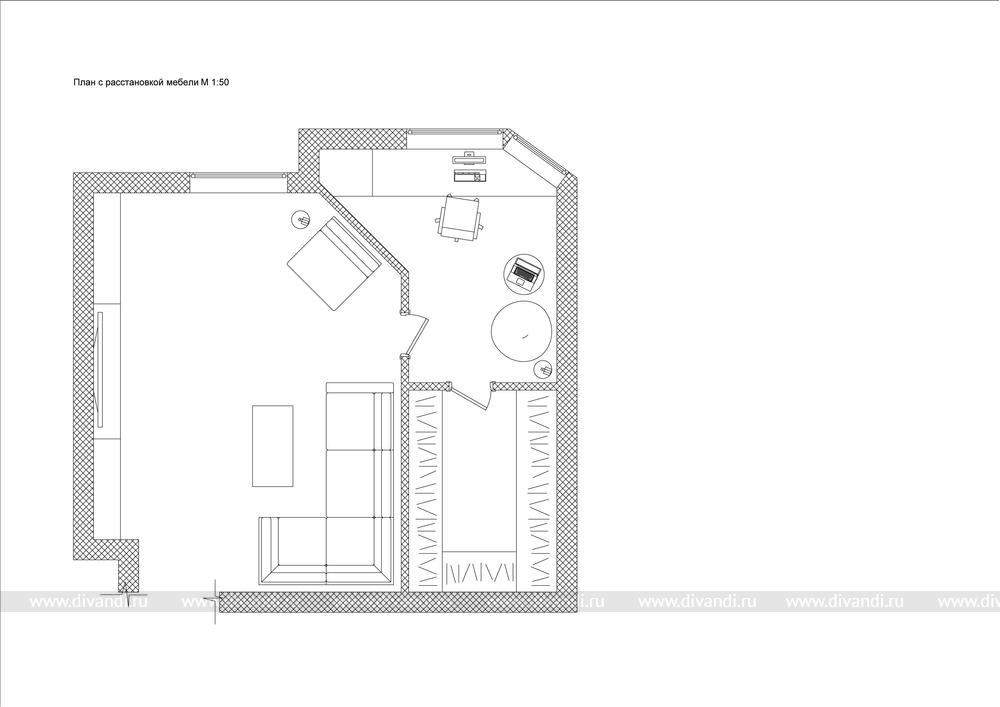
Этот проект разработан для семьи, в которой как раз в скором времени появится малыш. На данный момент, в детской комнате расположился кабинет и шкафы для хранения различных вещей. Так как большая комната в квартире достаточно большая (42,4 мКв) , было решено сделать из нее три необходимых помещения: гостиная, кабинет и гардероб.

Конечно заказчиков стоило подготовить к тому, что теперь у них не будет просторной гостиной, но как они сами мне сказали: "А нам она и не нужна, мы все равно ей не пользуемся. Слишком уж она огромная и пустая". Услышав эту фразу, все мои переживания прекратились и я была уверена, что они не пожалеют о своем решении. Очень приятно видеть людей, готовых к кардинальным переменам.

Что бы не выпадать из тональности квартиры, цветовое решение определилось сами собой. Цвета моря и неба придали интерьеру свежести, а натуральное дерево добавило жизни и близости к природе. В солнечные дни комнаты заливаются солнцем, можно почувствовать себя на берегу моря и валятся на мягком ковре с малышом.

Перемены всегда к лучшему, а тем более если они связаны с рождением новой жизни.

comments powered by HyperComments

Похожие проекты: