войти в личный кабинет
/
регистрация на сайте
войти в личный кабинет
/
регистрация на сайте
Диванди — всё, что нужно для дома, не выходя из дома
мебель и товары для дома
дизайн интерьера
ремонт и стройка
недвижимость
каталог мебели
спецпредложения
распродажи
магазины и салоны
отзывы
объявления
рейтинги
портфолио дизайнеров
каталог дизайнеров и дизайн-студий
консультации
статьи
новости
мастера, бригады и строй. фирмы
тендеры и заказы
реализованные объекты
отзывы
статьи
новости
форум
недвижимость екатеринбурга
объявления
продажа квартир
новостройки екб
новостройки 2026
коттеджные посёлки
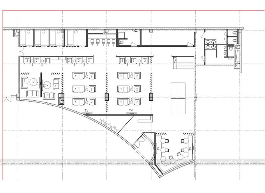
Проект зала повышенной комфортности в а/п КОЛЬЦОВО
29.11.2019
1027
Студия архитектурного дизайна «NAU_DESIGN»
телефон: +7 (343) 286-20-43
http://nautilus1.ru/
Оцените проект:
проголосовали:
/ средний бал:
Тип проекта:
административное здание
Стиль:
современный стиль
comments powered by HyperComments
Похожие проекты:
Милая детская для будущей школьницы
ART-DESIGN дизайн-студия Анны Гусевой
08.02.2026
12
93
Дизайн интерьера гостиной квартиры ЖК "Квартал на Некрасова"
Архитектурно-Строительная компания «Батенькофф»
30.01.2026
8
150
Дизайн интерьера спальной в квартире ЖК "Квартал на Некрасова"
Архитектурно-Строительная компания «Батенькофф»
30.01.2026
8
147
Санузел квартиры ЖК "Квартал на Некрасова"
Архитектурно-Строительная компания «Батенькофф»
30.01.2026
6
117
Дизайн гостиной ЖК "Ландау"
Архитектурно-Строительная компания «Батенькофф»
30.01.2026
22
136
Дизайн детской ЖК "Ландау"
Архитектурно-Строительная компания «Батенькофф»
30.01.2026
16
132
Дизайн детской ЖК "Ландау"
Архитектурно-Строительная компания «Батенькофф»
30.01.2026
14
107
Дизайн интерьера санузла ЖК "Нагорный"
Архитектурно-Строительная компания «Батенькофф»
30.01.2026
6
134
мебель и товары для дома
каталог мебели
спецпредложения
акции и распродажи
магазины и салоны
отзывы
объявления
рейтинги
личный кабинет
регистрация
вход
дизайн интерьера
портфолио дизайнеров
каталог дизайн-студий
консультации
статьи
новости
личный кабинет
регистрация
вход
ремонт и стройка
мастера, бригады и строй. фирмы
тендеры и заказы
реализованные объекты
отзывы
статьи
новости
для бригад и фирм
регистрация
войти в личный кабинет
недвижимость
недвижимость екатеринбурга
объявления
продажа квартир
новостройки
новостройки 2026
коттеджные посёлки
коммерческая недвижимость
форум
Вход на сайт для продавцов мебели и дизайнеров
Форма входа для заказчиков, мастеров и строительных фирм
здесь
Логин:
Пароль:
Сбросить пароль
Регистрация
Напомнить пароль
Логин:
Форма входа
Регистрация