Шикарная спальня в приглушенных тонах

  • 02.09.2019
  • 2691
Оцените проект:

Тип проекта: квартира, спальня

Стиль: эклектика

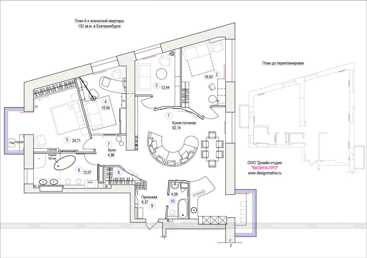
Помещение спальни объединено с лоджией. На лоджии устроен туалетный столик, пол утеплен, проект квартиры полностью реконструирован.

comments powered by HyperComments

Похожие проекты: