ЖК Белорецкий (проект)

  • 02.01.2018
  • 1145
Оцените проект:
1 2 3 4 5

Тип проекта: квартира, спальня, детская, кухня, ванная, гостиная

Стиль: современный стиль

Об объекте
Адрес: г. Екатеринбург, ЖК Белорецкий, ул. Степана Разина, 107
Застройщик: «Формула строительства»
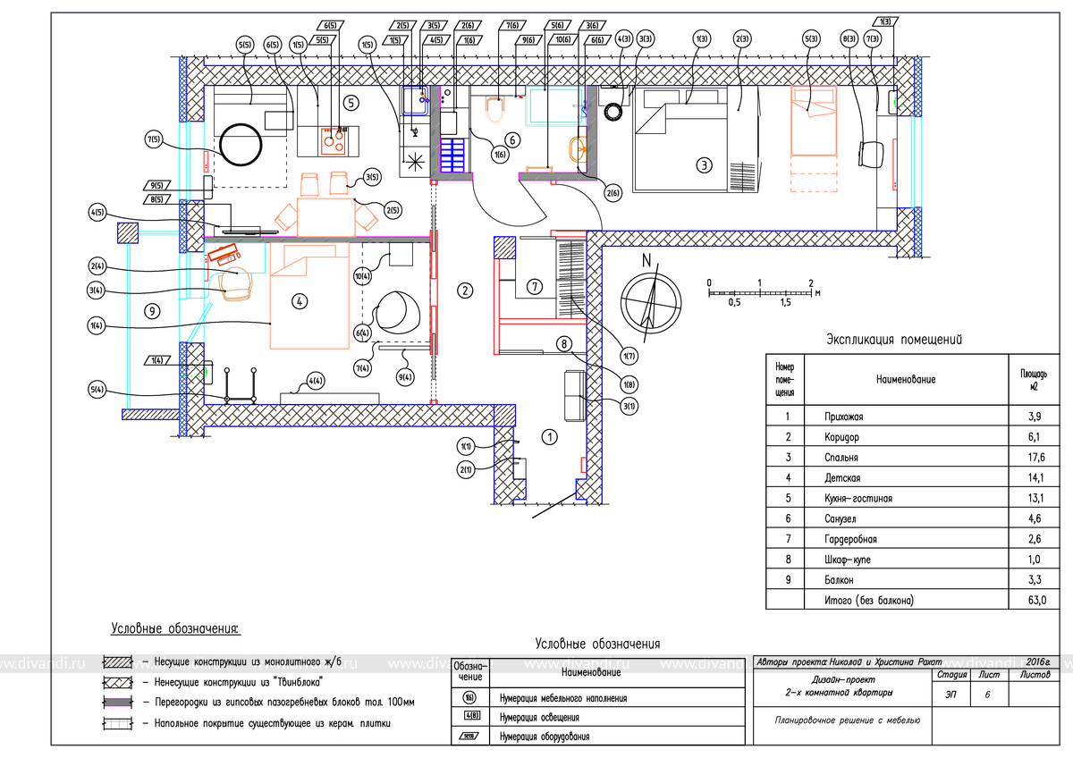
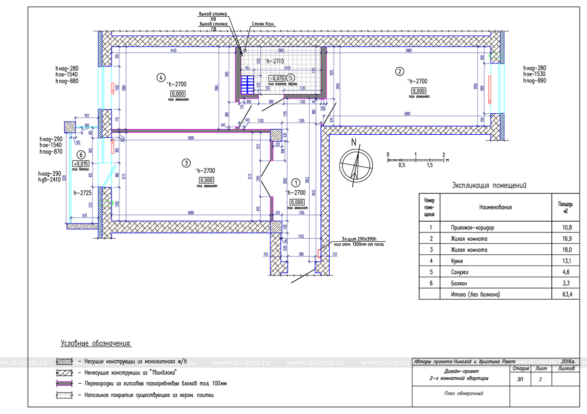
Площадь: 66,3 м2
Стиль: современный
Авторы проекта: Ник и Христина Рахат
Описание
Интерьер квартиры для современной семьи из 4-х человек (семейная пара с двумя разновозрастными детьми).
Кухня 13 м2 должна была вместить полноценный кухонный гарнитур, зону гостиной и столовой. Находясь за приготовлением пищи, хозяйка может смотреть телевизор, и не быть повернутой к семье спиной). На такой маленькой площади нам удалось разместить все эти зоны и расстояния между мебелью позволяют свободно передвигаться, не ударяясь. Зона готовки на острове защищена стеклянным фартуком-ограждением от брызг.
Комната подростка-сына смело оформлена и звукоизолирована, гитары и светомузыка умных ламп в прожекторах сделают счастливым любого взрослого ребенка.
Спальня родителей на первые несколько лет будет совмещать в себе и детскую зону для маленького ребенка. А когда ребенок переедет в основную детскую, то это место будет отдано для отдыха родителей, поставив пару кресел.
Куб в коридоре это отдельная общая гардеробная, а для личных вещей предусмотрено хранение в многочисленных отсеках кроватей

comments powered by HyperComments

Похожие проекты: