orange

  • 31.03.2014
  • 2544
Оцените проект:

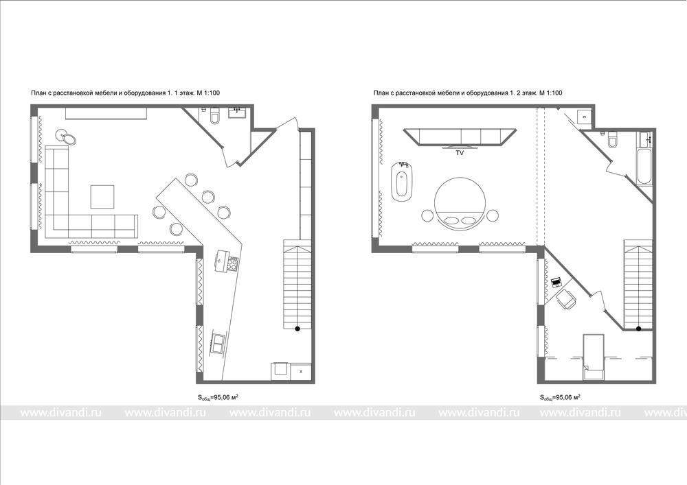
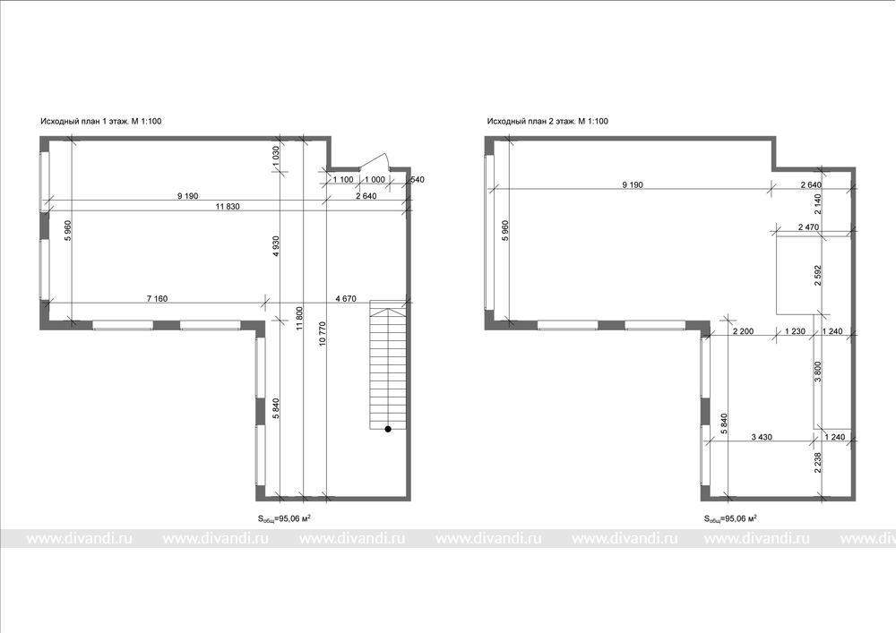
Тип проекта: загородный дом, кухня, гостиная

Стиль: современный стиль

Каждый день нас окружает множество забот, суета и бесконечные хлопоты, а еще и погодка на Урале иногда сильно прибавляет грусти и тоски. Но когда мы приходим домой, мы абстрагируемся от всего, отдыхаем душой и телом. Но через окна к нам все равно может проникнуть настроение города, тем более если за окном дождь и тучи. Задумка для этого проекта: пропитать все пространство лучиками солнца, добавить теплоты и радости в него, как будто бы лучи солнца пробиваются через гремучие облака, что бы мы могли погреться.

comments powered by HyperComments

Похожие проекты: