3-х комнатная квартира

  • 11.07.2011
  • 6411
  • телефон: Марина Дрейпа: 8-912-24-09872, Станислав Горбачев: 8-912-28-37920, Ст
Оцените проект:

Тип проекта: квартира

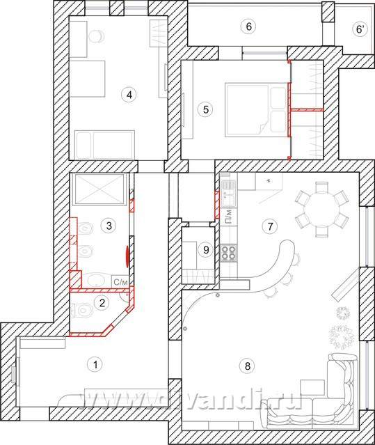
3-х комнатная квартира в городе Екатеринбург. Общая площадь 97 м.кв. Высота потолка 2.7 м. В ходе перепланировки объединили кухню с гостиной. Заложили вход в кухню из коридора и сделали там гардеробную. Увеличили площадь санузлов задействовав площадь коридора. Соединили спальню с балконом.

comments powered by HyperComments

Похожие проекты: