Дизайн интерьера загородного дома в стиле Кантри

  • 05.03.2013
  • 4496
Оцените проект:

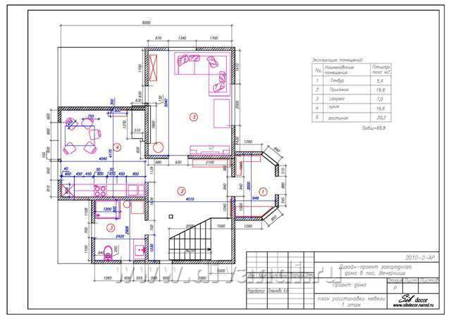
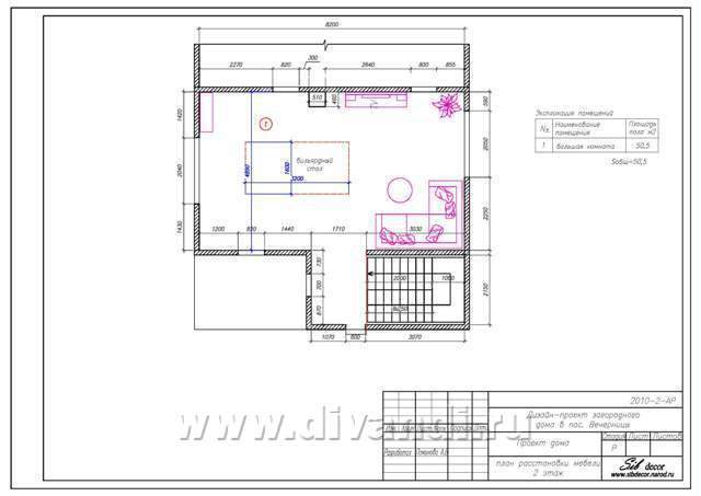
Тип проекта: загородный дом

Стиль: кантри

Создавая интерьер этого дома, дизайнер проекта ориентировался на пожелания хозяев будущего интерьера - «В интерьере должны преобладать натуральные материалы». Это фраза стала девизом реализуемого проекта. Созданный дизайнером интерьер загородного дома воплотил все мечты его хозяев о красивой и неспешной жизни в гармонии с природой.

comments powered by HyperComments

Похожие проекты: