Дизайн проект кухни-гостиной, прихожей и санузлов

  • 01.12.2023
  • 944
Оцените проект:

Тип проекта: квартира, кухня, ванная, гостиная

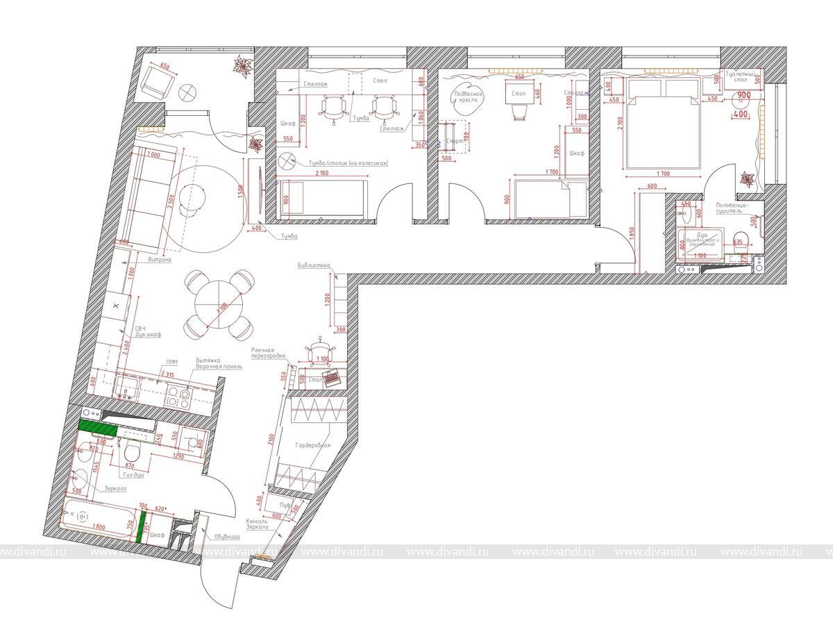
Квартира в Академическом с чистовым ремонтом. Площадь 105 кв.м. Семья из 4-человек - родителей и дочек 2-х и 8 лет. Важно было предусмотреть спальные места для гостей, рабочую зону для папы. Необходимо было предложить несколько вариантов расстановки мебели, зонирование для всей квартиры, выполнить эскизы и
чертежи для двух санузлов, кухни-гостиной и прихожей.

comments powered by HyperComments

Похожие проекты: