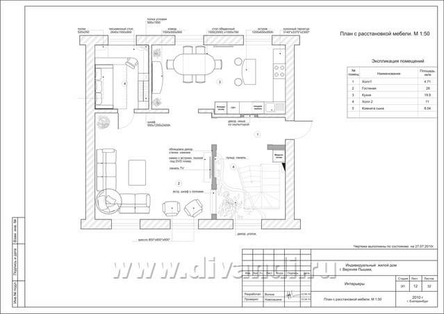
интерьеры индивидуального дома в Верхней Пышме

  • 08.10.2010
  • 4295
Оцените проект:

Тип проекта: загородный дом

Стиль: классический

Интерьеры выполнены в классическом стиле с применением современных материалов.

comments powered by HyperComments

Похожие проекты: