Квартира Шалинский. Гостиная-кухня

  • 07.04.2018
  • 1297
Оцените проект:

Тип проекта: квартира, кухня, гостиная

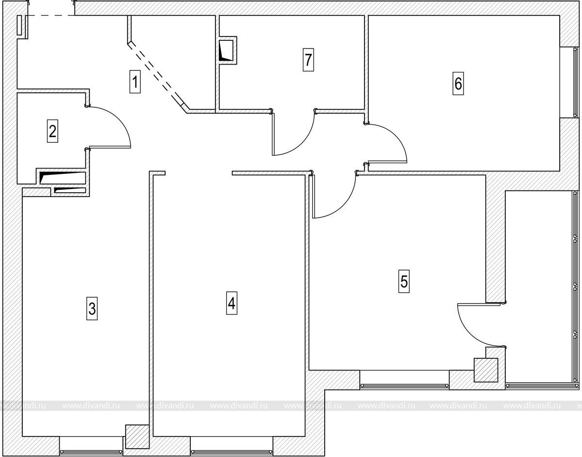
Изначально квартира планировалась как трехкомнатная, с изолированной гостиной и отдельной кухне, спальней и детской комнатой для двоих разнополых детей. Квартира проектировалась в 2013 году. И вот спустя время заказчики обратились повторно для перепланировки квартиры, т.к. подросли дети и их нужно было расселять по отдельным комнатам. Поэтому встала интересная задача "Как из 3х комнатной квартиры сделать 4х комнатную с обеспечением мест для хранения" т.к. семья очень сильно обжилась вещами) Поэтому решено было сделать совмещенную гостиную с кухней и выделить одну комнату старшей дочери заказчиков.

comments powered by HyperComments

Похожие проекты: