Проект гостиной в коттедже в КП Алексеевка

  • 22.01.2018
  • 1412
Оцените проект:

Тип проекта: загородный дом, гостиная

Стиль: кантри

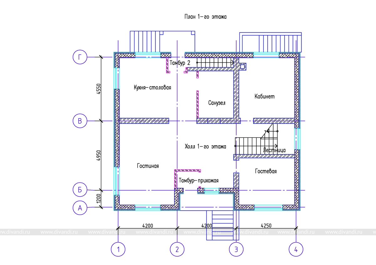
Гостиная открытой планировки в двухэтажном коттедже в КП Алексеевка (пригород г. Екатеринбурга). Мы сочетали современную мебель и аксессуары с традиционными элементами отделки, таких как деревянные балки, старый кирпич и штукатурка.

comments powered by HyperComments

Похожие проекты: