Как квартиру-студию превратить в двушку?

Вопрос читателя
Добрый день. Мы с мужем приобрели квартиру-студию общей площадью 38,9 квадратных метров. Скоро у нас появится ребенок, и нам хотелось бы как можно более рационально обустроить свое гнездышко. Не могли бы вы подсказать нам, как, где и какие можно выделить зоны?
Заранее спасибо!
Людмила.
Ответ дизайнера

Где расположить систему хранения? Справа от входа можно разместить группу встроенных шкафов. Здесь найдется место и для шкафов с верхней одеждой, и для гардеробной. Чтобы не путаться, супруги могут выбрать себе цвет шкафчика. Если вы заметили, в оформлении фасадов шкафов, как и во всем интерьере, используются несколько основных цветов.
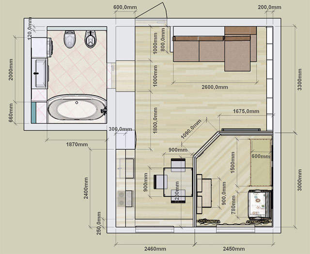
Малогабаритные квартиры-студии в современном градостроительстве встречаются не так уж и редко. Это достаточно удобное жилье для молодых супружеских пар. Открытое пространство позволяет планировать интерьер под свои нужды. Современный дизайн помещений предлагает несколько вариантов членения его на так называемые функциональные зоны. Дизайнер Ирина Гришкевич нашла место для каждой важной зоны в квартире.
Кухня
Для кухни дизайнер выделила небольшой уголок в студии. Для того, чтобы кухня была удобной, вовсе не нужно много места. Достаточно грамотно обустроить обеденную зону и зону для приготовления пищи. В планировке кухни можно заметить три интересных приема: холодильник не бросается в глаза, потому что встроен в гардеробные шкафы, выстроившиеся у стены в прихожей; подоконник в кухне специально нарощен и с легкостью заменит барную стойку; а раздвижной обеденный стол можно использовать и для приема гостей, и в качестве рабочего стола (кабинета).

Гостиная
От входной двери гостиная отделена небольшой перегородкой. Заметьте: гостиная облегчена – в ней нет никаких шкафов и тумб. Единственная мебель для хранения – вместительный стеллаж. Днем это помещение, по замыслу дизайнера Ирины Гришкевич, выполняет функцию гостиной, ночью – превращается в родительскую спальню. Соответственно, диван трансформируется в полноценную кровать.

Детская
Для детской комнаты дизайнер выделила самый светлый и солнечный уголок, рядом с окном. Чтобы не терять естественное освещение в гостиной, Ирина Гришкевич предложила верхнюю часть перегородки сделать светопроницаемой. Пока малыш мал, в комнате разместилась только кроватка, кресло и пеленальный столик. Когда ребенок подрастет, здесь можно будет поставить «взрослую» мебель.

Ванная
В ванной комнате присутствует вся необходимая сантехника: ванна, унитаз, биде, стиральная машина. Чтобы зрительно расширить пространство, дизайнер советует обшить стены крупной светлой вытянутой плиткой до 30 см по большей стороне (300х600). А для того, чтобы потолок «не давил», плитку можно выложить не до потолка, а на высоту 190 см и завершить цветным бордюром. Дополнительно, чтобы визуально «раздвинуть» стены и создать перспективу, напротив ванны можно повесить стекло с цветной фотопечатью.





